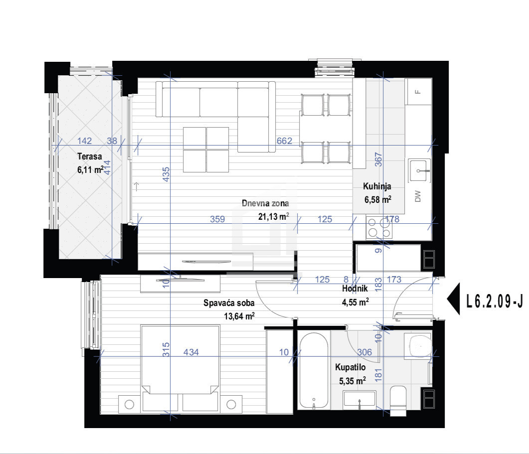
One bedroom apartment of 57.34m2 on the second floor is for sale in the new Verde Village settlement. It is oriented to the north and faces the entrance to the square. The apartment has its own garage space, as well as a storage room.
Completion of the works is planned for January/February 2025.












Compare listings
Compare